Space Planning & Renderings

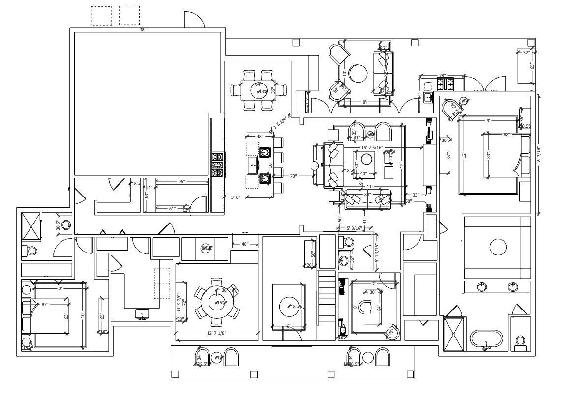
Accurate space planning is the foundation of a successful renovation or new build—ensuring measurements, layouts, and design intentions are flawlessly aligned from concept to completion.

Visualize the possibilities—personalized renderings help you see your space come to life and make confident, informed decisions before renovations even begin. You’ll know exactly how every detail will look, ensuring no surprises along the way.

Every room has potential—space planning transforms it into reality. By thoughtfully arranging furniture, optimizing flow, and balancing function with style, Rising Designs turns unused corners into purposeful spaces and everyday rooms into inspiring environments.

Collaborative space planning defines the difference between a house and a home that works with your lifestyle. By combining your vision with thoughtful design expertise, Rising Designs creates spaces that feel uniquely yours—functional, beautiful, and perfectly in tune with the way you live.